Nuova realizzazione di villa in Pavia

Il progetto nasce in un contesto privo di identità tipologica in un’area al confine tra le campagne e la città consolidata.

La villa si rivolge verso lo spazio naturale aprendosi attraverso le grandi vetrate e gli ampi spazi esterni.

Le linee sono nette, decise ed esprimono la modernità in contrasto con il contesto.

Lo spazio esterno è dominato dal bianco delle pareti e la tinta calda della pietra che vengono riflessi sulla superficie dell’acqua della piscina creando continui rimandi di luce.

Il volume è un accostamento di geometrie semplici a falda singola che si accostano in un gioco di pieni e vuoti scanditi dal cambio di materiali.

All’interno le forme si addolciscono e il colore bianco lascia spazio al contrasto con i colori caldi e i materiali naturali per creare un ambiente famigliare accogliente.

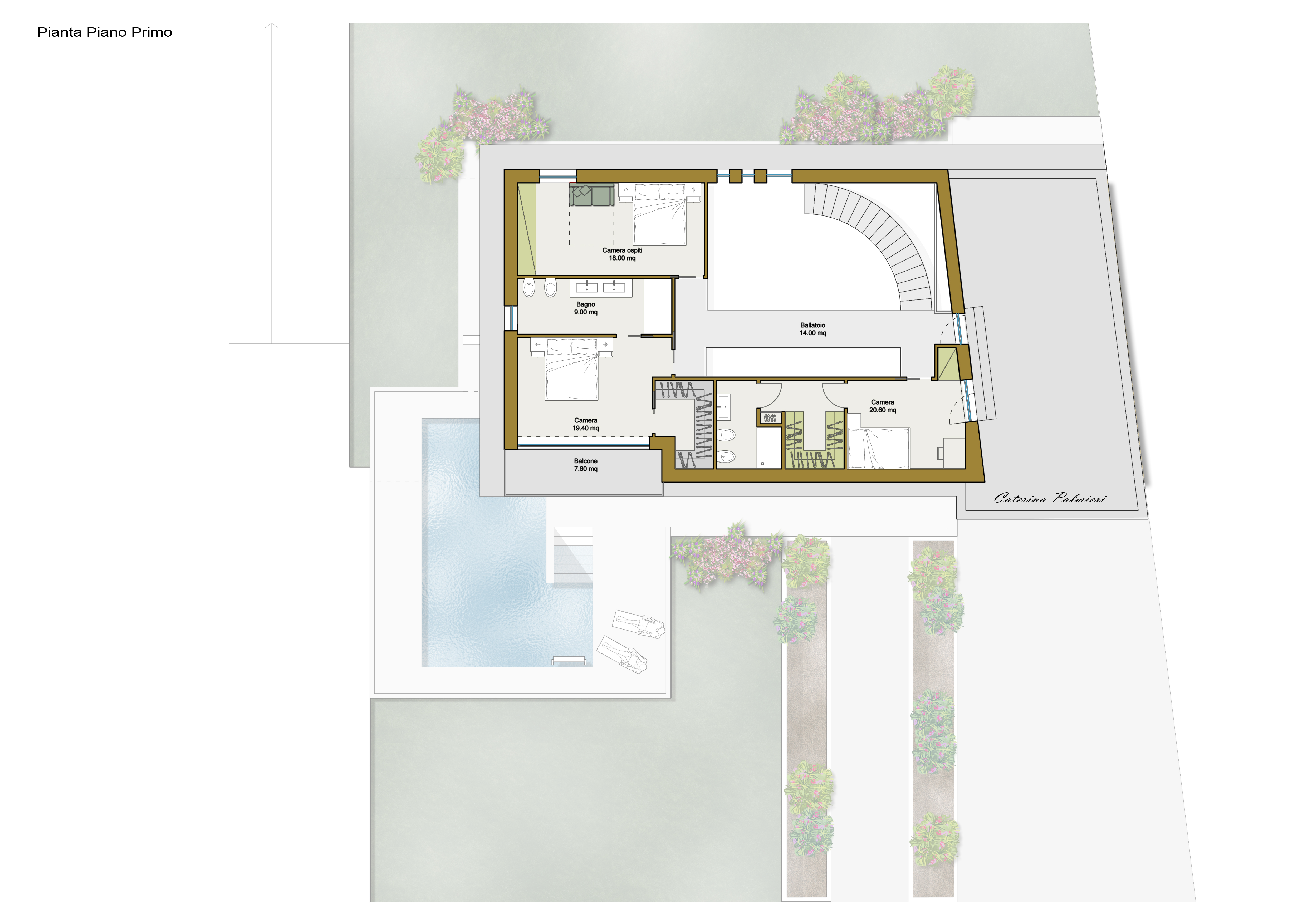
La zona giorno è dominata dalla presenza della scala che attraverso lo spazio a doppia altezza mette in comunicazione la zona giorno con la zona notte della casa.

La pietra diviene il trait d’union tra interno ed esterno rivestendo le superfici esterne del piano terra e la parete in accostamento del vano scala all’interno.

 


Località: Pavia (PV)

Cliente: Privato

Data realizzazione: 2016/2017